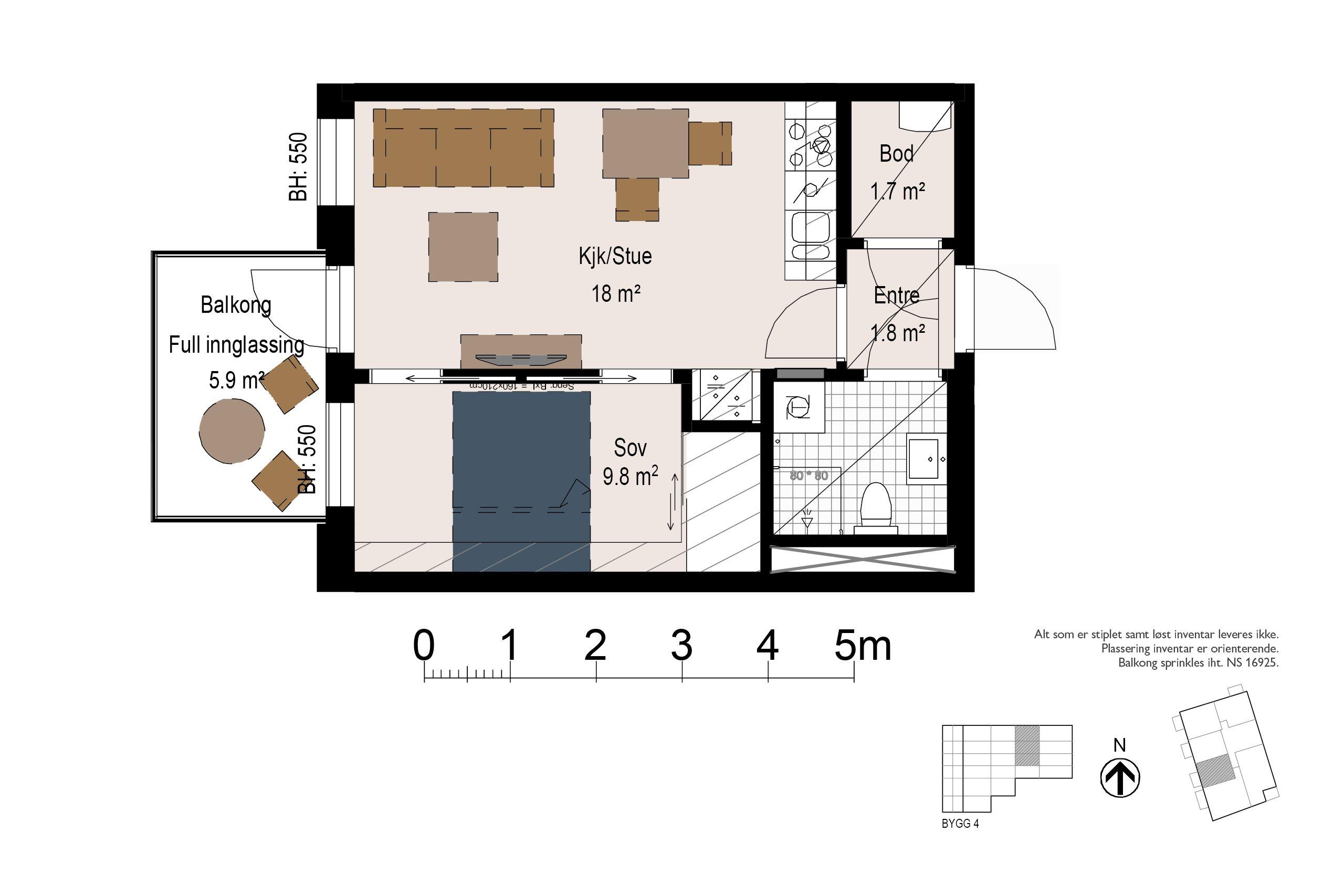
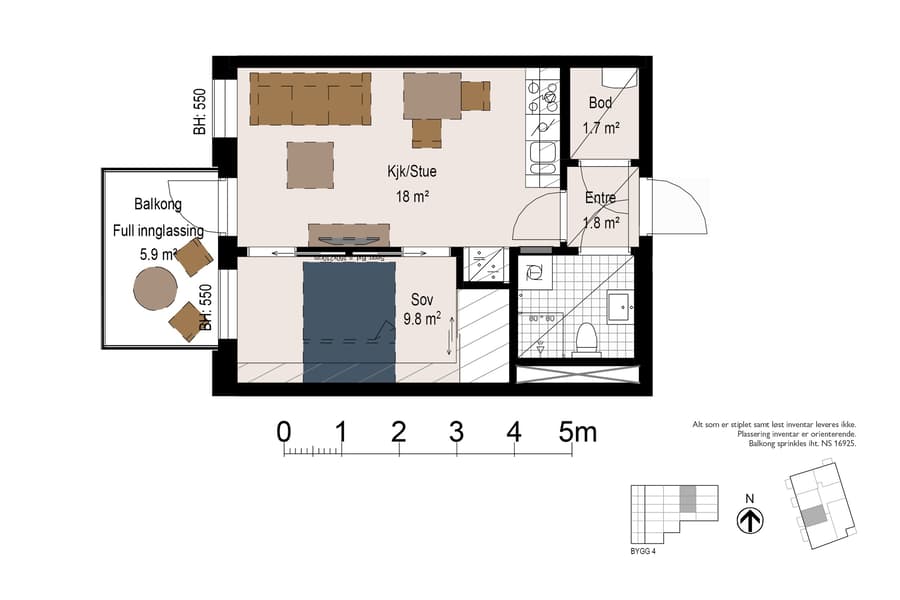
2 roms, 38.1 m²
• Perfekt 2-roms for førstegangskjøperen
• Innglasset balkong mot vest
• Kjøkken med integrerte hvitevarer
• Skyvedørsgarderobe i soverom
• God lagringsplass med bod i leiligheten
• Downlights på bad og i entre
• Innglasset balkong mot vest
• Kjøkken med integrerte hvitevarer
• Skyvedørsgarderobe i soverom
• God lagringsplass med bod i leiligheten
• Downlights på bad og i entre













