Om boligene
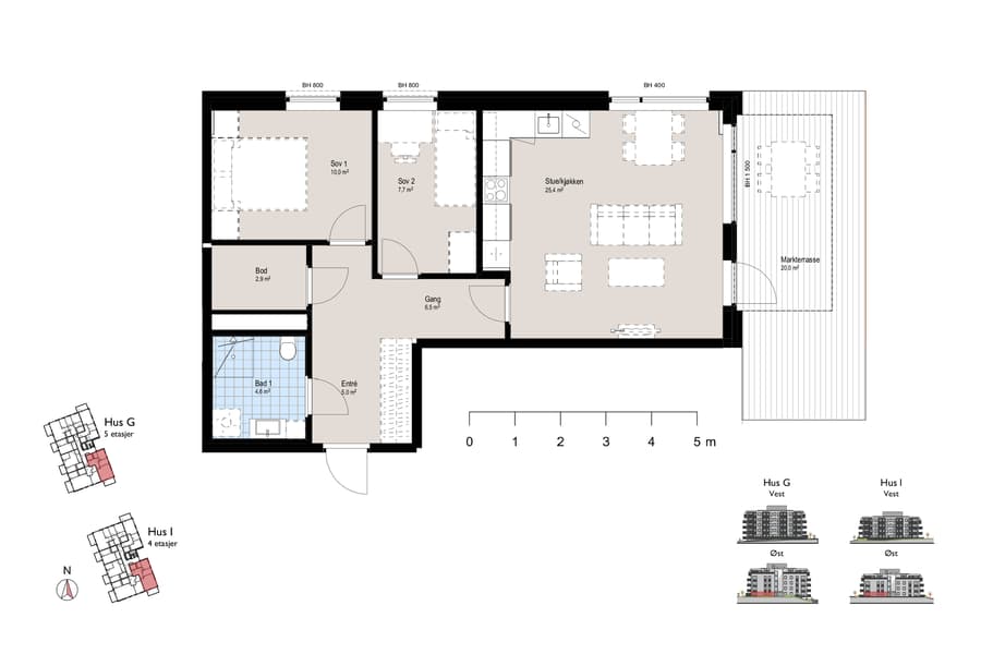
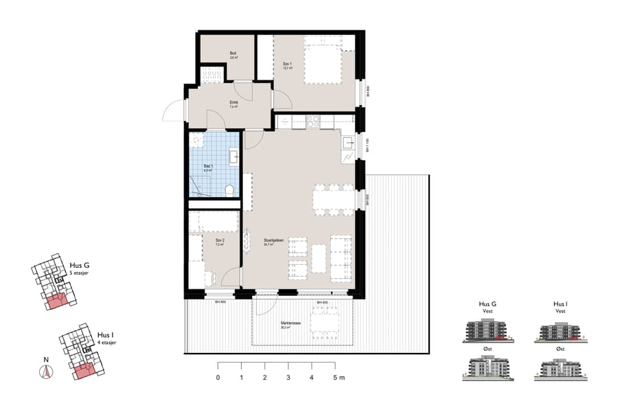
Strindalia hus G vil totalt bestå av 28 nye og moderne to- til fireroms selveierleiligheter. Leilighetene får gode og gjennomtenkte planløsninger, med sin egen private uteplass.
Sett ditt preg på boligen
JM Original er en nøye utvalgt innredning som inngår i prisen for nettopp din bolig. Du kan også velge fra et innredningssortiment utover Original. Sortimentet er valgt spesielt for ditt prosjekt og presenteres i innredningsvelgeren, der også kostnaden for de enkelte alternativene fremgår.












