2 roms, 54.2 m²
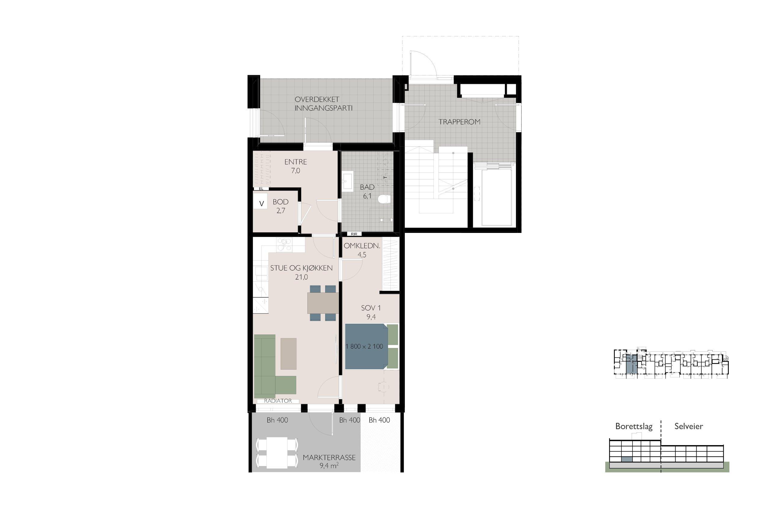
Denne 2-roms leiligheten på 54,2 kvm har en effektiv utforming som gir god utnyttelse av arealet. Leiligheten har trappefri adkomst via svalgang og en sydvendt markterrasse på 9,4 kvm – et privat uteområde med plass til utemøbler, hvor du kan nyte solen fra morgen til ettermiddag.
Oppholdsrommet er på ca. 21 kvm og kombinerer stue og kjøkken i en åpen løsning med et lekkert vinkelkjøkken og integrerte hvitevarer. Planløsningen gir god plass til spisebord og sittegruppe, samtidig som rommet oppleves luftig og funksjonelt.
Leiligheten har ett romslig soverom med skyvedørsgarderobe. Badet er 6,1 kvm og inkluderer opplegg for vaskemaskin.
Det er også god plass til oppbevaring i leiligheten; én bod innvendig på 2,7 kvm og plass til garderobeskap like innenfor inngangsdøren, ideell for yttertøy og oppbevaring.
Dette er en lettstelt bolig med god planløsning og uteplass, som passer for mange ulike livssituasjoner.
• En meget praktisk 2-roms leilighet
• Sydvendt og stor markterrasse
• Delikat kjøkken med overskap til taket
• Integrerte hvitevarer fra Whirlpool medfølger
• Flott, flislagt bad med en lekker baderomsinnredning
• God lagringsplass med innvendig bod og skyvedørsgarderobe i hovedsoverom
• Downlights på bad
• Hvitpigmentert eikeparkett
• Sportsbod i kjeller medfølger
• Svanemerket og energieffektiv selveierleilighet
• Tilvalg er mulig. Se egen link til innredningsguide
• Lave omkostninger
• 5 års reklamasjonsrett (fra overtakelse)
Oppholdsrommet er på ca. 21 kvm og kombinerer stue og kjøkken i en åpen løsning med et lekkert vinkelkjøkken og integrerte hvitevarer. Planløsningen gir god plass til spisebord og sittegruppe, samtidig som rommet oppleves luftig og funksjonelt.
Leiligheten har ett romslig soverom med skyvedørsgarderobe. Badet er 6,1 kvm og inkluderer opplegg for vaskemaskin.
Det er også god plass til oppbevaring i leiligheten; én bod innvendig på 2,7 kvm og plass til garderobeskap like innenfor inngangsdøren, ideell for yttertøy og oppbevaring.
Dette er en lettstelt bolig med god planløsning og uteplass, som passer for mange ulike livssituasjoner.
• En meget praktisk 2-roms leilighet
• Sydvendt og stor markterrasse
• Delikat kjøkken med overskap til taket
• Integrerte hvitevarer fra Whirlpool medfølger
• Flott, flislagt bad med en lekker baderomsinnredning
• God lagringsplass med innvendig bod og skyvedørsgarderobe i hovedsoverom
• Downlights på bad
• Hvitpigmentert eikeparkett
• Sportsbod i kjeller medfølger
• Svanemerket og energieffektiv selveierleilighet
• Tilvalg er mulig. Se egen link til innredningsguide
• Lave omkostninger
• 5 års reklamasjonsrett (fra overtakelse)













