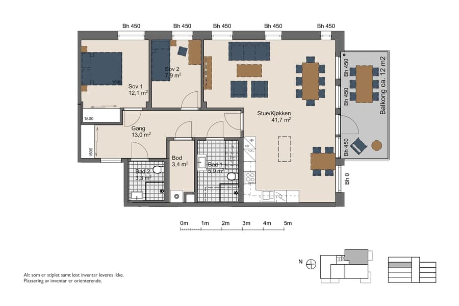
3 roms, 92.5 m²
• Lekker 3-roms hjørneleilighet med sydvendt uteplass på ca 12 kvm
• Tilbaketrukket og usjenert beliggenhet på området.
• Soverommene vender mot frodig skog i øst
• Stor og romslig kjøkken/stueløsning med mange vinduer
• Delikat vinkelkjøkken i farge Sand med kjøkkenøy og stekeovn i høyskap
• Bad med praktisk benkeplate og overskap over vask/tørk og mulighet for badekar
• Ekstra bad og WC i tilknytning til entré
• God lagringsplass med bod i leiligheten og skyvedørsgarderobe på hovedsoverom og i entré
• Downlights på bad og i entré
• 1 stavs hvitpigmentert eikeparkett
• Tilvalgsfristen er utløpt. Se moodboard for valgt innredning i leiligheten
• Tilbaketrukket og usjenert beliggenhet på området.
• Soverommene vender mot frodig skog i øst
• Stor og romslig kjøkken/stueløsning med mange vinduer
• Delikat vinkelkjøkken i farge Sand med kjøkkenøy og stekeovn i høyskap
• Bad med praktisk benkeplate og overskap over vask/tørk og mulighet for badekar
• Ekstra bad og WC i tilknytning til entré
• God lagringsplass med bod i leiligheten og skyvedørsgarderobe på hovedsoverom og i entré
• Downlights på bad og i entré
• 1 stavs hvitpigmentert eikeparkett
• Tilvalgsfristen er utløpt. Se moodboard for valgt innredning i leiligheten























