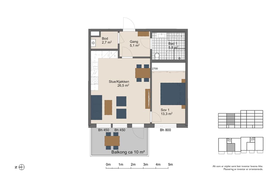
2 roms, 56.5 m²
• Romslig 2-roms leilighet med utgang til vestvendt balkong på ca. 10 kvm
• Flott vinkelkjøkken med integrerte hvitevarer og stekeovn i høyskap
• Moderne og romslig bad med praktisk benkeplate og overskap over vask/tørk
• Skyvedørsgarderobe på soverom
• Downlights på bad og i entré
• Innvendig bod, samt sportsbod i underetasjen
• Flott vinkelkjøkken med integrerte hvitevarer og stekeovn i høyskap
• Moderne og romslig bad med praktisk benkeplate og overskap over vask/tørk
• Skyvedørsgarderobe på soverom
• Downlights på bad og i entré
• Innvendig bod, samt sportsbod i underetasjen















